- [神戸 賃貸|神戸 賃貸マンション情報NET] TOP
- 神戸市兵庫区
- 西出町
- 神戸市兵庫区西出町(神戸市営地下鉄海岸線ハーバーランド駅)のマンション物件詳細
神戸の賃貸物件を検索
神戸市兵庫区西出町(神戸市営地下鉄海岸線ハーバーランド駅)のマンション物件詳細
![]() |
![]() |
||||
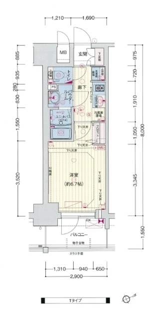
| その他の写真 | ![]() |
※画像をクリックすると 拡大表示します。 |
|||
|---|---|---|---|---|---|
| ホームメイトFC三宮店 TEL.078-334-2960 |
物件番号 | 100961851304 |
|---|---|---|
|








