神戸市兵庫区水木通(神戸高速線新開地駅)のマンション物件詳細

物件番号 100961850631
家賃
108,510円
共益費
8,490円
交通 ・神戸高速線新開地より徒歩2分
・神戸高速線新開地より徒歩2分
所在地 神戸市兵庫区水木通1丁目5番5号賃貸物件のMAP
敷金
礼金
保証金
解約引
契約一時金
償却費
取引態様
入居時期
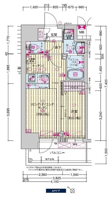
間取
専有面積
駐車場
部屋の向き
種別
完成年月
建物構造
-
10万円
-
-
-
-
一般
入居中
1LDK
30.34m2

南西向き
マンション
2024年9月
鉄筋コンクリート
15階建/11階
その他費用
設備・条件
給湯追い焚き給湯浴室乾燥機ウォッシュレットエアコンモニタ付インターホンオートロック宅配ボックスエレベータBS

設備・条件アイコンの説明を見る

コメント プレサポ241320円(月額) 「プレサンス神戸水木通ルミエス」のここがイチオシ。衣類の乾燥、浴室の除湿が可能な浴室乾燥機の付いた浴室です。共用部には宅配ボックスが備え付けられているため、非対面での荷物の受け取りが可能です。幸先の良い新生活を神戸市兵庫区で迎えましょう。お部屋に関することなら078-334-2960やapaman-w@apaman-web.co.jpから、アパマン住宅までご連絡ください。
神戸市兵庫区水木通(神戸高速線新開地駅)のマンション賃貸物件 間取画像 神戸市兵庫区水木通(神戸高速線新開地駅)のマンション賃貸物件 外観写真
その他の写真 ※画像をクリックすると
拡大表示します。
この物件のお問い合わせ先
ホームメイトFC三宮店
TEL.078-334-2960
物件番号 100961850631
免許番号:兵庫県知事(9)第9090号
会社名:アパマン住宅神戸三宮本店
所在地:兵庫県神戸市中央区三宮町1丁目8番1号 さんプラザ 112号室 この店のMAP
Tel:078-334-2960 FAX:078-334-2962
※お問い合わせの際は、物件番号や「神戸賃貸マンション情報NETを見て」とお伝えいただくと対応がスムーズになります。

この物件について問い合わせる

こちらの物件もおすすめです!
  • 神戸市兵庫区三川口町の賃貸物件外観写真
  • 兵庫駅 徒歩11
  • 108,000円 / 1LDK
  • 保証会社加入要 退去時クリーニング費用55000円 短期解約違約金あり詳細を見る
このページのTOPへ