神戸市兵庫区浜崎通(JR山陽本線兵庫駅)のマンション物件詳細

物件番号 100961847601
家賃
68,000円
共益費
7,000円
交通 ・JR山陽本線兵庫より徒歩3分
・神戸高速線大開より徒歩13分
所在地 神戸市兵庫区浜崎通2番18号賃貸物件のMAP
敷金
礼金
保証金
解約引
契約一時金
償却費
取引態様
入居時期
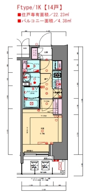
間取
専有面積
駐車場
部屋の向き
種別
完成年月
建物構造
-
8万円
-
-
-
-
一般
入居中
1K
22.23m2

南向き
マンション
2021年5月
鉄筋コンクリート
15階建/3階
その他費用
設備・条件
給湯浴室乾燥機ウォッシュレットエアコンモニタ付インターホンオートロック宅配ボックスエレベータBSCATV

設備・条件アイコンの説明を見る

コメント プレサポ24990円(月額) 「プレサンス兵庫駅前」:神戸市兵庫区エリアの新居にピッタリ。セキュリティ面は、TVインターホン・オートロックなど充実しているので安心して生活できます。賃料10万円以下をご希望のお客様、ぜひお問い合わせください。神戸市兵庫区での暮らしを検討されてるなら、兵庫周辺からスタートしましょう。078-334-2960からアパマン住宅までご連絡下さい。
神戸市兵庫区浜崎通(JR山陽本線兵庫駅)のマンション賃貸物件 間取画像 神戸市兵庫区浜崎通(JR山陽本線兵庫駅)のマンション賃貸物件 外観写真
その他の写真 ※画像をクリックすると
拡大表示します。
この物件のお問い合わせ先
ホームメイトFC三宮店
TEL.078-334-2960
物件番号 100961847601
免許番号:兵庫県知事(9)第9090号
会社名:アパマン住宅神戸三宮本店
所在地:兵庫県神戸市中央区三宮町1丁目8番1号 さんプラザ 112号室 この店のMAP
Tel:078-334-2960 FAX:078-334-2962
※お問い合わせの際は、物件番号や「神戸賃貸マンション情報NETを見て」とお伝えいただくと対応がスムーズになります。

この物件について問い合わせる

こちらの物件もおすすめです!
このページのTOPへ