神戸市中央区海岸通(神戸市営地下鉄海岸線みなと元町駅)のマンション物件詳細

物件番号 100961845093
家賃
68,930円
共益費
9,070円
交通 ・神戸市営地下鉄海岸線みなと元町より徒歩2分
・神戸高速線花隈より徒歩4分
所在地 神戸市中央区海岸通4丁目3番8号賃貸物件のMAP
敷金
礼金
保証金
解約引
契約一時金
償却費
取引態様
入居時期
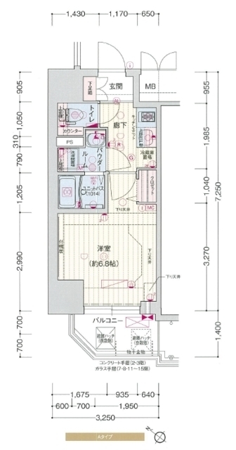
間取
専有面積
駐車場
部屋の向き
種別
完成年月
建物構造
-
8万円
-
-
-
-
一般
入居中
1K
23.56m2

南西向き
マンション
2020年2月
鉄筋コンクリート
15階建/2階
その他費用
設備・条件
給湯浴室乾燥機ウォッシュレットエアコンモニタ付インターホンオートロック宅配ボックスエレベータBSCATV

設備・条件アイコンの説明を見る

コメント プレサポ24990円(月額) みなと元町駅周辺への引っ越しをお考えなら「プレサンス神戸元町ベルシオン」。セキュリティ面は、オートロック・TVインターホンなどを設置しているので安全面でも優れております。住みやすい環境が嬉しい賃貸物件です。丁寧かつ迅速に対応する事がモットーの当社なら、きっと満足していただけるお部屋探しが可能です。神戸市中央区やみなと元町付近のことならお任せ下さい。
神戸市中央区海岸通(神戸市営地下鉄海岸線みなと元町駅)のマンション賃貸物件 間取画像 神戸市中央区海岸通(神戸市営地下鉄海岸線みなと元町駅)のマンション賃貸物件 外観写真
その他の写真 ※画像をクリックすると
拡大表示します。
この物件のお問い合わせ先
ホームメイトFC三宮店
TEL.078-334-2960
物件番号 100961845093
免許番号:兵庫県知事(9)第9090号
会社名:アパマン住宅神戸三宮本店
所在地:兵庫県神戸市中央区三宮町1丁目8番1号 さんプラザ 112号室 この店のMAP
Tel:078-334-2960 FAX:078-334-2962
※お問い合わせの際は、物件番号や「神戸賃貸マンション情報NETを見て」とお伝えいただくと対応がスムーズになります。

この物件について問い合わせる

こちらの物件もおすすめです!
このページのTOPへ