- [神戸 賃貸|神戸 賃貸マンション情報NET] TOP
- 神戸市長田区
- 東尻池町
- 神戸市長田区東尻池町(神戸市営地下鉄海岸線苅藻駅)のアパート物件詳細
神戸の賃貸物件を検索
神戸市長田区東尻池町(神戸市営地下鉄海岸線苅藻駅)のアパート物件詳細
![]() |
![]() |
||||
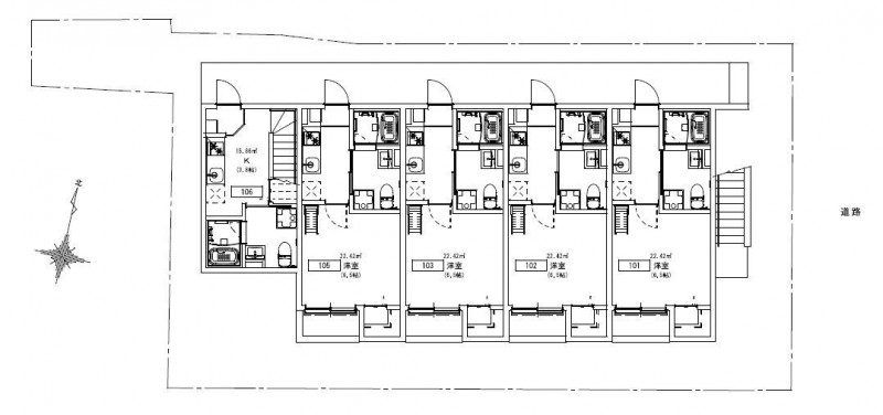
| その他の写真 | ![]() |
![]() |
![]() |
![]() |
※画像をクリックすると 拡大表示します。 |
|---|---|---|---|---|---|
![]() |
![]() |
||||
| ホームメイトFC三宮店 TEL.078-334-2960 |
物件番号 | 100961841475 |
|---|---|---|
|













