神戸市中央区日暮通(阪急神戸線春日野道駅)のマンション物件詳細

物件番号 100961840890
家賃
60,200円
共益費
9,800円
交通 ・阪急神戸線春日野道より徒歩4分
・阪神本線春日野道より徒歩5分
所在地 神戸市中央区日暮通3丁目5番1号賃貸物件のMAP
敷金
礼金
保証金
解約引
契約一時金
償却費
取引態様
入居時期
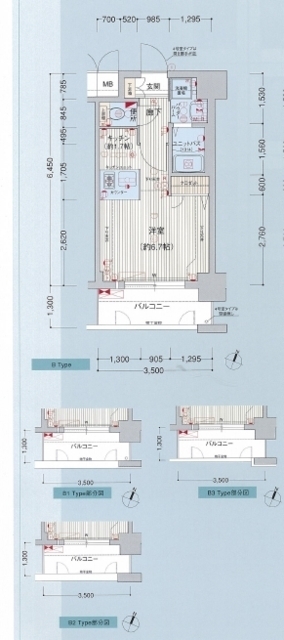
間取
専有面積
駐車場
部屋の向き
種別
完成年月
建物構造
-
8万円
-
-
-
-
一般
入居中
1R
22.57m2

南向き
マンション
2007年8月
鉄筋コンクリート
10階建/5階
その他費用
設備・条件
給湯エアコンモニタ付インターホンオートロック宅配ボックスエレベータBSCATV

設備・条件アイコンの説明を見る

コメント プレサポ24990円(月額) 新着情報:プレサンス三宮東アルバーナの空室情報ならコチラ。共用部には宅配ボックスが付いているため、対面で荷物を受け取る必要がありません。室内設備はBS・ネット使用料不要・CATVなどが揃っているので、快適に過ごしやすいお部屋になります。アパマン住宅へのお問い合わせなら078-334-2960までお電話ください。来店・内覧予約なども承っております。
神戸市中央区日暮通(阪急神戸線春日野道駅)のマンション賃貸物件 間取画像 神戸市中央区日暮通(阪急神戸線春日野道駅)のマンション賃貸物件 外観写真
その他の写真 ※画像をクリックすると
拡大表示します。
この物件のお問い合わせ先
ホームメイトFC三宮店
TEL.078-334-2960
物件番号 100961840890
免許番号:兵庫県知事(9)第9090号
会社名:アパマン住宅神戸三宮本店
所在地:兵庫県神戸市中央区三宮町1丁目8番1号 さんプラザ 112号室 この店のMAP
Tel:078-334-2960 FAX:078-334-2962
※お問い合わせの際は、物件番号や「神戸賃貸マンション情報NETを見て」とお伝えいただくと対応がスムーズになります。

この物件について問い合わせる

こちらの物件もおすすめです!
  • 神戸市中央区下山手通の賃貸物件外観写真
  • 大倉山駅 徒歩5
  • 58,780円 / 1K
  • 保証会社加入要 短期解約違約金あり 鍵交換代33000円(任意)詳細を見る
このページのTOPへ