- [神戸 賃貸|神戸 賃貸マンション情報NET] TOP
- 神戸市中央区
- 熊内町
- 神戸市中央区熊内町(神戸市営地下鉄線新神戸駅)のマンション物件詳細
神戸の賃貸物件を検索
神戸市中央区熊内町(神戸市営地下鉄線新神戸駅)のマンション物件詳細
![]() |
![]() |
||||
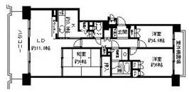
| その他の写真 | ![]() |
![]() |
![]() |
![]() |
※画像をクリックすると 拡大表示します。 |
|---|---|---|---|---|---|
![]() |
![]() |
![]() |
![]() |
||
| ホームメイトFC三宮店 TEL.078-334-2960 |
物件番号 | 100961838173 |
|---|---|---|
|















