神戸市中央区御幸通(阪神本線神戸三宮駅)のマンション物件詳細

物件番号 100961835052
家賃
78,110円
共益費
8,890円
交通 ・阪神本線神戸三宮より徒歩7分
・神戸市営地下鉄海岸線三宮・花時計前より徒歩7分
所在地 神戸市中央区御幸通2丁目2番3号賃貸物件のMAP
敷金
礼金
保証金
解約引
契約一時金
償却費
取引態様
入居時期
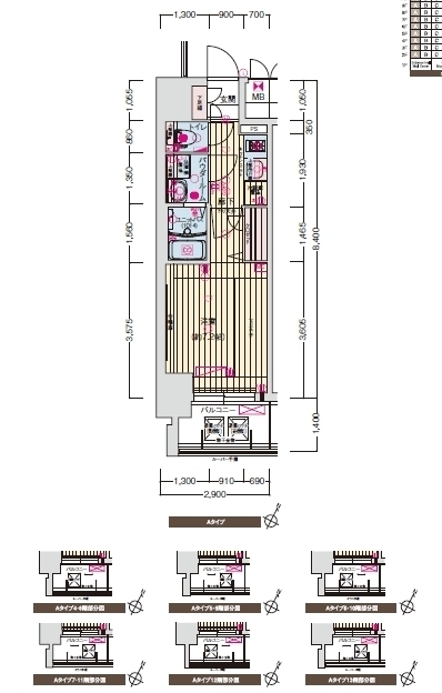
間取
専有面積
駐車場
部屋の向き
種別
完成年月
建物構造
-
10万円
-
-
-
-
一般
入居中
1K
24.36m2

南東向き
マンション
2018年3月
鉄筋コンクリート
15階建/12階
その他費用
設備・条件
給湯浴室乾燥機ウォッシュレットエアコンモニタ付インターホンオートロック宅配ボックスエレベータBSCATV

設備・条件アイコンの説明を見る

コメント プレサポ24990円(月額) 神戸市中央区エリアでの住まいなら、住み心地も快適な「プレサンス三宮ポルト」はいかがでしょうか。セキュリティ面は、TVインターホン・オートロックなどを設置しているので安全面でも優れております。交通利便性を重視するのでしたら、神戸三宮周辺がベストです。住まい探しは、078-334-2960にてアパマン住宅にお問い合わせ下さい。
神戸市中央区御幸通(阪神本線神戸三宮駅)のマンション賃貸物件 間取画像 神戸市中央区御幸通(阪神本線神戸三宮駅)のマンション賃貸物件 外観写真
その他の写真 ※画像をクリックすると
拡大表示します。
この物件のお問い合わせ先
ホームメイトFC三宮店
TEL.078-334-2960
物件番号 100961835052
免許番号:兵庫県知事(9)第9090号
会社名:アパマン住宅神戸三宮本店
所在地:兵庫県神戸市中央区三宮町1丁目8番1号 さんプラザ 112号室 この店のMAP
Tel:078-334-2960 FAX:078-334-2962
※お問い合わせの際は、物件番号や「神戸賃貸マンション情報NETを見て」とお伝えいただくと対応がスムーズになります。

この物件について問い合わせる

こちらの物件もおすすめです!
  • 神戸市中央区下山手通の賃貸物件外観写真
  • 元町駅 徒歩3
  • 82,000円 / 2DK
  • 保証会社加入要 退去時クリーニング費用33000円 短期解約違約金あり詳細を見る
このページのTOPへ