- [神戸 賃貸|神戸 賃貸マンション情報NET] TOP
- 神戸市中央区
- 楠町
- 神戸市中央区楠町(JR東海道本線(近畿)神戸駅)のマンション物件詳細
神戸の賃貸物件を検索
神戸市中央区楠町(JR東海道本線(近畿)神戸駅)のマンション物件詳細
![]() |
![]() |
||||
| その他の写真 | ![]() |
![]() |
![]() |
![]() |
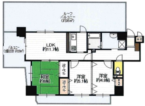
※画像をクリックすると 拡大表示します。 |
|---|---|---|---|---|---|
![]() |
![]() |
![]() |
![]() |
||
| ホームメイトFC三宮店 TEL.078-334-2960 |
物件番号 | 100961833507 |
|---|---|---|
|















