神戸市兵庫区水木通1丁目
交通 新開地駅 徒歩2分
- 家賃 10.651万円
- 共益費 8,490円
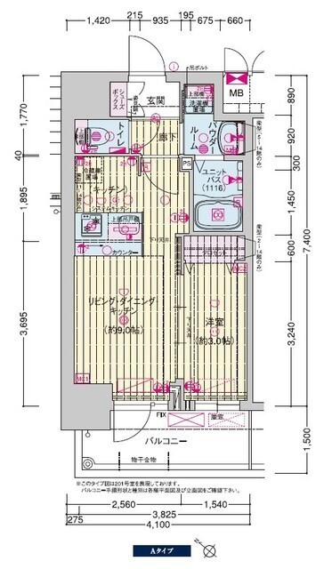
- 間取り 1LDK
- 専有面積 30.34m2
物件コメント
プレサポ241320円(月額) 浴室乾燥機付きの物件は、乾燥機で浴室を乾燥させることができるのでカビの繁殖を防ぐことに役立ちます。宅配ボックス付きの物件なので不在時の荷物受け取りもできます。暑い夏、寒い冬には必須のエアコンが付いています。神戸市兵庫区エリアに詳しいアパマン住宅が、賃貸情報も生活情報もお教えします。078-334-2960またはapaman-w@apaman-web.co.jpへお気軽にお問い合わせください。電話で問い合わせる
| 物件番号 100961849364 | |
|---|---|
| 物件番号 100961849364 | |
| 所在地 | 神戸市兵庫区水木通1丁目5番5号 MAPを見る |
| 交通 |
|
| 家賃 | 106,510円 家賃相場を見る |
| 共益費 | 8,490円 |
| 敷金 | - |
| 礼金 | 12万円 |
| 取引態様 | 一般 |
| 入居時期 | 入居中 |
| 間取り | 1LDK |
| 専有面積 | 30.34m2 |
| 駐車場 | 無 |
| 部屋の向き | 南西向き |
| 種別 | マンション |
| 完成年月 | 2024年9月 |
| 建物構造 | 鉄筋コンクリート 15階建/9階 |
| その他 | 保証金:-、解約引:-、契約一時金:-、償却費:-、その他費用: |
| 設備・条件 |
給湯、追い焚き給湯、浴室乾燥機、ウォッシュレット、エアコン、モニタ付インターホン、オートロック、宅配ボックス、エレベータ、BS |
この物件のお問い合わせ先
- 免許番号:兵庫県知事(9)第9090号
- 会社名:ホームメイトFC三宮店
- 所在地:兵庫県神戸市中央区三宮町1丁目8番1号 さんプラザ 112号室
店舗のMAP- 078-334-2960
- FAX:078-334-2962
- 所在地:兵庫県神戸市中央区三宮町1丁目8番1号 さんプラザ 112号室

