神戸市兵庫区水木通1丁目
交通 新開地駅 徒歩2分
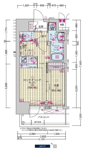
- 家賃 10.951万円
- 共益費 8,490円
- 間取り 1LDK
- 専有面積 30.34m2
物件コメント
プレサポ241320円(月額) セキュリティ面は、オートロック・TVインターホンなどを備え付けているので安心して暮らせます。生乾きの洗濯物をしっかり乾かしたい時でも、お風呂場でサッと乾燥できる浴室乾燥機があります。まだまだ新しい築1年のお部屋です。神戸市兵庫区での生活を、新開地周辺で始めませんか?当社へのお問い合わせは078-334-2960へ、お気軽にどうぞ。お待ちしております。電話で問い合わせる
| 物件番号 100961852277 | |
|---|---|
| 物件番号 100961852277 | |
| 所在地 | 神戸市兵庫区水木通1丁目5番5号 MAPを見る |
| 交通 |
|
| 家賃 | 109,510円 家賃相場を見る |
| 共益費 | 8,490円 |
| 敷金 | - |
| 礼金 | 12万円 |
| 取引態様 | 一般 |
| 入居時期 | 入居中 |
| 間取り | 1LDK |
| 専有面積 | 30.34m2 |
| 駐車場 | 無 |
| 部屋の向き | 南西向き |
| 種別 | マンション |
| 完成年月 | 2024年9月 |
| 建物構造 | 鉄筋コンクリート 15階建/12階 |
| その他 | 保証金:-、解約引:-、契約一時金:-、償却費:-、その他費用: |
| 設備・条件 |
給湯、追い焚き給湯、浴室乾燥機、ウォッシュレット、エアコン、モニタ付インターホン、オートロック、宅配ボックス、エレベータ、BS |
この物件のお問い合わせ先
- 免許番号:兵庫県知事(9)第9090号
- 会社名:ホームメイトFC三宮店
- 所在地:兵庫県神戸市中央区三宮町1丁目8番1号 さんプラザ 112号室
店舗のMAP- 078-334-2960
- FAX:078-334-2962
- 所在地:兵庫県神戸市中央区三宮町1丁目8番1号 さんプラザ 112号室

