神戸市長田区西丸山町2丁目
交通 丸山駅 徒歩7分
- 家賃 5万円
- 共益費 5,000円
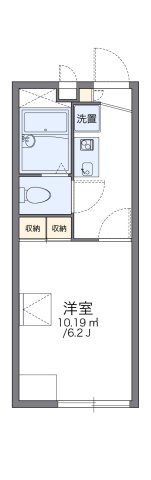
- 間取り 1K
- 専有面積 19.87m2
物件コメント
共用部には宅配ボックスを設置しているため、家で何時間も待機する必要がなくなります。浴室や洗濯物からスピーディーに湿気を除去してカビの発生を防げる、浴室乾燥機が付いています。バスルームとトイレが分かれています。こちらは1Kの物件です。丸山周辺での住まい選びなら、アパマン住宅までご連絡下さい。078-334-2960よりこだわりやご要望など、お気軽にお電話下さい。電話で問い合わせる
| 物件番号 100961851975 | |
|---|---|
| 物件番号 100961851975 | |
| 所在地 | 神戸市長田区西丸山町2丁目7-16 MAPを見る |
| 交通 |
|
| 家賃 | 50,000円 家賃相場を見る |
| 共益費 | 5,000円 |
| 敷金 | - |
| 礼金 | 1ヶ月分 |
| 取引態様 | 一般 |
| 入居時期 | 2026年6月 |
| 間取り | 1K |
| 専有面積 | 19.87m2 |
| 駐車場 | 無 |
| 部屋の向き | - |
| 種別 | アパート |
| 完成年月 | 2003年3月 |
| 建物構造 | 木造 2階建/1階 |
| その他 | 保証金:-、解約引:-、契約一時金:-、償却費:-、その他費用: |
| 設備・条件 |
給湯、浴室乾燥機、トイレ/風呂別、室内洗濯機置場、ウォッシュレット、エアコン、ロフト、宅配ボックス |
この物件のお問い合わせ先
- 免許番号:兵庫県知事(9)第9090号
- 会社名:ホームメイトFC三宮店
- 所在地:兵庫県神戸市中央区三宮町1丁目8番1号 さんプラザ 112号室
店舗のMAP- 078-334-2960
- FAX:078-334-2962
- 所在地:兵庫県神戸市中央区三宮町1丁目8番1号 さんプラザ 112号室









