神戸市兵庫区西出町2丁目
交通 ハーバーランド駅 徒歩4分
- 家賃 6.311万円
- 共益費 7,890円
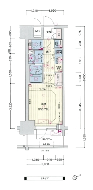
- 間取り 1K
- 専有面積 23.2m2
物件コメント
プレサポ241320円(月額) 荷物を注文する時に時間を気にしなくてよくなる宅配ボックスを共用部に備え付けております。この物件には浴室乾燥機があり、洗濯物を浴室に干すことができるため、来客時に急いで洗濯物を片付ける必要がなくなります。神戸市兵庫区での住まい探しは、078-334-2960またはapaman-w@apaman-web.co.jpからご連絡下さい。お客様からのお問い合わせを心よりお待ちしております。電話で問い合わせる
| 物件番号 100961851304 | |
|---|---|
| 物件番号 100961851304 | |
| 所在地 | 神戸市兵庫区西出町2丁目16番23号 MAPを見る |
| 交通 |
|
| 家賃 | 63,110円 家賃相場を見る |
| 共益費 | 7,890円 |
| 敷金 | - |
| 礼金 | 8万円 |
| 取引態様 | 一般 |
| 入居時期 | 入居中 |
| 間取り | 1K |
| 専有面積 | 23.2m2 |
| 駐車場 | 無 |
| 部屋の向き | 東向き |
| 種別 | マンション |
| 完成年月 | 2019年1月 |
| 建物構造 | 鉄筋コンクリート 15階建/4階 |
| その他 | 保証金:-、解約引:-、契約一時金:-、償却費:-、その他費用: |
| 設備・条件 |
給湯、浴室乾燥機、ウォッシュレット、エアコン、モニタ付インターホン、オートロック、宅配ボックス、エレベータ、BS、CATV |
この物件のお問い合わせ先
- 免許番号:兵庫県知事(9)第9090号
- 会社名:ホームメイトFC三宮店
- 所在地:兵庫県神戸市中央区三宮町1丁目8番1号 さんプラザ 112号室
店舗のMAP- 078-334-2960
- FAX:078-334-2962
- 所在地:兵庫県神戸市中央区三宮町1丁目8番1号 さんプラザ 112号室


