神戸市兵庫区西出町2丁目
交通 ハーバーランド駅 徒歩4分
- 家賃 12.97万円
- 共益費 10,300円
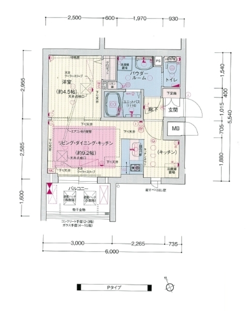
- 間取り 1LDK
- 専有面積 33.24m2
物件コメント
プレサポ241320円(月額) 共用部には宅配ボックスが備え付けられているため、対面で荷物を受け取らなくて済みます。セキュリティ面は、TVインターホン・オートロックなど充実しているので安心して生活できます。新築マンションです。神戸市兵庫区で新生活を始めるなら、アパマン住宅にお任せ下さい。お客様が満足していただけるよう、しっかりとサポート致します。078-334-2960にてご連絡下さい。電話で問い合わせる
| 物件番号 100961850859 | |
|---|---|
| 物件番号 100961850859 | |
| 所在地 | 神戸市兵庫区西出町2丁目16番23号 MAPを見る |
| 交通 |
|
| 家賃 | 129,700円 家賃相場を見る |
| 共益費 | 10,300円 |
| 敷金 | - |
| 礼金 | 15万円 |
| 取引態様 | 一般 |
| 入居時期 | 入居中 |
| 間取り | 1LDK |
| 専有面積 | 33.24m2 |
| 駐車場 | 無 |
| 部屋の向き | 南向き |
| 種別 | マンション |
| 完成年月 | 2019年1月 |
| 建物構造 | 鉄筋コンクリート 15階建/14階 |
| その他 | 保証金:-、解約引:-、契約一時金:-、償却費:-、その他費用: |
| 設備・条件 |
給湯、追い焚き給湯、浴室乾燥機、ウォッシュレット、エアコン、床暖房、モニタ付インターホン、オートロック、宅配ボックス、エレベータ、BS、CATV |
この物件のお問い合わせ先
- 免許番号:兵庫県知事(9)第9090号
- 会社名:ホームメイトFC三宮店
- 所在地:兵庫県神戸市中央区三宮町1丁目8番1号 さんプラザ 112号室
店舗のMAP- 078-334-2960
- FAX:078-334-2962
- 所在地:兵庫県神戸市中央区三宮町1丁目8番1号 さんプラザ 112号室


