神戸市兵庫区水木通1丁目
交通 新開地駅 徒歩2分
- 家賃 10.851万円
- 共益費 8,490円
- 間取り 1LDK
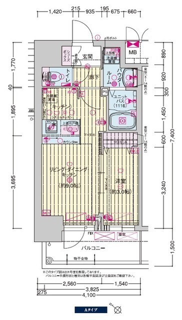
- 専有面積 30.34m2
物件コメント
プレサポ241320円(月額) 「プレサンス神戸水木通ルミエス」のここがイチオシ。衣類の乾燥、浴室の除湿が可能な浴室乾燥機の付いた浴室です。共用部には宅配ボックスが備え付けられているため、非対面での荷物の受け取りが可能です。幸先の良い新生活を神戸市兵庫区で迎えましょう。お部屋に関することなら078-334-2960やapaman-w@apaman-web.co.jpから、アパマン住宅までご連絡ください。電話で問い合わせる
| 物件番号 100961850631 | |
|---|---|
| 物件番号 100961850631 | |
| 所在地 | 神戸市兵庫区水木通1丁目5番5号 MAPを見る |
| 交通 |
|
| 家賃 | 108,510円 家賃相場を見る |
| 共益費 | 8,490円 |
| 敷金 | - |
| 礼金 | 10万円 |
| 取引態様 | 一般 |
| 入居時期 | 入居中 |
| 間取り | 1LDK |
| 専有面積 | 30.34m2 |
| 駐車場 | 無 |
| 部屋の向き | 南西向き |
| 種別 | マンション |
| 完成年月 | 2024年9月 |
| 建物構造 | 鉄筋コンクリート 15階建/11階 |
| その他 | 保証金:-、解約引:-、契約一時金:-、償却費:-、その他費用: |
| 設備・条件 |
給湯、追い焚き給湯、浴室乾燥機、ウォッシュレット、エアコン、モニタ付インターホン、オートロック、宅配ボックス、エレベータ、BS |
この物件のお問い合わせ先
- 免許番号:兵庫県知事(9)第9090号
- 会社名:ホームメイトFC三宮店
- 所在地:兵庫県神戸市中央区三宮町1丁目8番1号 さんプラザ 112号室
店舗のMAP- 078-334-2960
- FAX:078-334-2962
- 所在地:兵庫県神戸市中央区三宮町1丁目8番1号 さんプラザ 112号室

