神戸市中央区元町通5丁目
交通 みなと元町駅 徒歩2分
- 家賃 6.524万円
- 共益費 8,760円
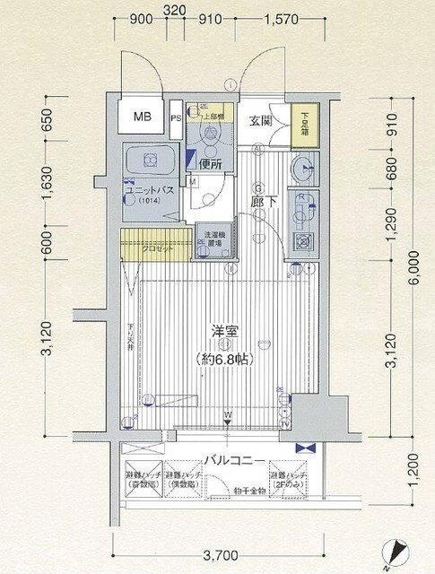
- 間取り 1K
- 専有面積 22.2m2
物件コメント
プレサポ24990円(月額) 「プレサンス神戸みなと元町」のここがイチオシ。室内設備はエアコン・ネット使用料不要・BSなど大変充実しております。セキュリティ面は、オートロック・TVインターホンなどを備え付けているので安心して暮らせます。魅力も多い賃貸物件はいかがでしょうか。神戸市中央区での新生活をみなと元町周辺で迎えましょう。お気軽にapaman-w@apaman-web.co.jpからアパマン住宅にご連絡ください。電話で問い合わせる
| 物件番号 100961848104 | |
|---|---|
| 物件番号 100961848104 | |
| 所在地 | 神戸市中央区元町通5丁目2番6号 MAPを見る |
| 交通 |
|
| 家賃 | 65,240円 家賃相場を見る |
| 共益費 | 8,760円 |
| 敷金 | - |
| 礼金 | 8万円 |
| 取引態様 | 一般 |
| 入居時期 | 入居中 |
| 間取り | 1K |
| 専有面積 | 22.2m2 |
| 駐車場 | 無 |
| 部屋の向き | 北西向き |
| 種別 | マンション |
| 完成年月 | 2003年12月 |
| 建物構造 | 鉄骨鉄筋コンクリート 12階建/6階 |
| その他 | 保証金:-、解約引:-、契約一時金:-、償却費:-、その他費用: |
| 設備・条件 |
給湯、エアコン、モニタ付インターホン、オートロック、宅配ボックス、エレベータ、BS |
この物件のお問い合わせ先
- 免許番号:兵庫県知事(9)第9090号
- 会社名:ホームメイトFC三宮店
- 所在地:兵庫県神戸市中央区三宮町1丁目8番1号 さんプラザ 112号室
店舗のMAP- 078-334-2960
- FAX:078-334-2962
- 所在地:兵庫県神戸市中央区三宮町1丁目8番1号 さんプラザ 112号室

