神戸市中央区元町通5丁目
交通 花隈駅 徒歩4分
- 家賃 8万円
- 共益費 15,000円
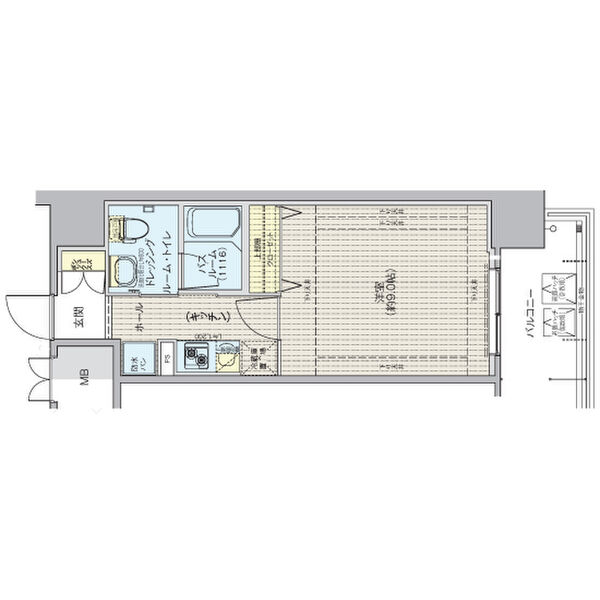
- 間取り 1K
- 専有面積 29.57m2
物件コメント
くらし安心サポート1000円(月額)電話で問い合わせる
| 物件番号 100961846901 | |
|---|---|
| 物件番号 100961846901 | |
| 所在地 | 神戸市中央区元町通5丁目1-8 MAPを見る |
| 交通 |
|
| 家賃 | 80,000円 家賃相場を見る |
| 共益費 | 15,000円 |
| 敷金 | - |
| 礼金 | - |
| 取引態様 | 一般 |
| 入居時期 | 2026年4月 |
| 間取り | 1K |
| 専有面積 | 29.57m2 |
| 駐車場 | 無 |
| 部屋の向き | - |
| 種別 | マンション |
| 完成年月 | 2015年7月 |
| 建物構造 | 鉄筋コンクリート 14階建/4階 |
| その他 | 保証金:-、解約引:-、契約一時金:-、償却費:-、その他費用: |
| 設備・条件 |
浴室乾燥機、トイレ/風呂別、ウォッシュレット、エアコン、オートロック |
この物件のお問い合わせ先
- 免許番号:兵庫県知事(9)第9090号
- 会社名:ホームメイトFC三宮店
- 所在地:兵庫県神戸市中央区三宮町1丁目8番1号 さんプラザ 112号室
店舗のMAP- 078-334-2960
- FAX:078-334-2962
- 所在地:兵庫県神戸市中央区三宮町1丁目8番1号 さんプラザ 112号室



