神戸市中央区筒井町3丁目
交通 春日野道駅 徒歩2分
- 家賃 7.141万円
- 共益費 8,590円
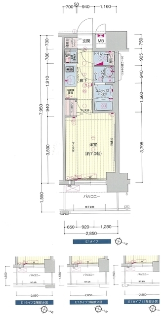
- 間取り 1K
- 専有面積 22.65m2
物件コメント
プレサポ24990円(月額) 新生活を失敗せず、スタートさせたいならこちらの「プレサンス三宮東フィール」はいかがでしょうか。セキュリティ面は、TVインターホン・オートロックなどを設置しているので安全面でも優れております。2015年築の物件です。春日野道周辺でお住まいを見つけたい方、アパマン住宅に一度ご連絡下さい。連絡先は078-334-2960からお待ちしております。電話で問い合わせる
| 物件番号 100961843195 | |
|---|---|
| 物件番号 100961843195 | |
| 所在地 | 神戸市中央区筒井町3丁目12番22号 MAPを見る |
| 交通 |
|
| 家賃 | 71,410円 家賃相場を見る |
| 共益費 | 8,590円 |
| 敷金 | - |
| 礼金 | 10万円 |
| 取引態様 | 一般 |
| 入居時期 | 入居中 |
| 間取り | 1K |
| 専有面積 | 22.65m2 |
| 駐車場 | 無 |
| 部屋の向き | 東向き |
| 種別 | マンション |
| 完成年月 | 2015年6月 |
| 建物構造 | 鉄筋コンクリート 14階建/4階 |
| その他 | 保証金:-、解約引:-、契約一時金:-、償却費:-、その他費用: |
| 設備・条件 |
給湯、浴室乾燥機、ウォッシュレット、エアコン、モニタ付インターホン、オートロック、宅配ボックス、エレベータ、BS、CATV |
この物件のお問い合わせ先
- 免許番号:兵庫県知事(9)第9090号
- 会社名:ホームメイトFC三宮店
- 所在地:兵庫県神戸市中央区三宮町1丁目8番1号 さんプラザ 112号室
店舗のMAP- 078-334-2960
- FAX:078-334-2962
- 所在地:兵庫県神戸市中央区三宮町1丁目8番1号 さんプラザ 112号室

