神戸市中央区東雲通1丁目
交通 春日野道駅 徒歩2分
- 家賃 6.18万円
- 共益費 7,000円
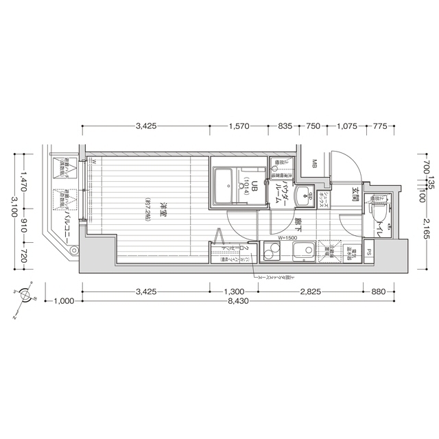
- 間取り 1K
- 専有面積 23.98m2
物件コメント
スマサポコンシェル1320円(月額) セキュリティ面は、オートロック・TVインターホンなど充実しているので、防犯対策もばっちりです。浴室乾燥機を備え付けているので、浴室や洗濯物からスピーディーに湿気を除去してカビを防げます。住みやすい環境が嬉しい賃貸物件です。お客様のご希望に沿ったお部屋探しをアパマン住宅がサポート致します。078-334-2960/apaman-w@apaman-web.co.jpへご希望の条件をお申しつけください。電話で問い合わせる
| 物件番号 100961840495 | |
|---|---|
| 物件番号 100961840495 | |
| 所在地 | 神戸市中央区東雲通1丁目 MAPを見る |
| 交通 |
|
| 家賃 | 61,800円 家賃相場を見る |
| 共益費 | 7,000円 |
| 敷金 | - |
| 礼金 | 12.36万円 |
| 取引態様 | 一般 |
| 入居時期 | 即入居 |
| 間取り | 1K |
| 専有面積 | 23.98m2 |
| 駐車場 | 無 |
| 部屋の向き | 東向き |
| 種別 | マンション |
| 完成年月 | 2014年4月 |
| 建物構造 | 鉄筋コンクリート 9階建/4階 |
| その他 | 保証金:-、解約引:-、契約一時金:-、償却費:-、その他費用: |
| 設備・条件 |
浴室乾燥機、トイレ/風呂別、室内洗濯機置場、システムキッチン、エアコン、バルコニー、モニタ付インターホン、オートロック、宅配ボックス、エレベータ、自転車置場、CATV |
この物件のお問い合わせ先
- 免許番号:兵庫県知事(9)第9090号
- 会社名:ホームメイトFC三宮店
- 所在地:兵庫県神戸市中央区三宮町1丁目8番1号 さんプラザ 112号室
店舗のMAP- 078-334-2960
- FAX:078-334-2962
- 所在地:兵庫県神戸市中央区三宮町1丁目8番1号 さんプラザ 112号室





