• 賃貸物件を探す
  • 賃貸物件詳細

神戸市中央区八雲通1丁目

交通 春日野道駅 徒歩4分

  • 家賃 6.29万円
  • 共益費 5,900円
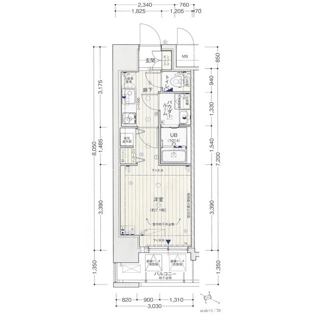
  • 間取り 1K
  • 専有面積 24.45m2
  • その他写真1
  • その他写真2
  • その他写真3
  • その他写真4
  • その他写真5
  • その他写真6

    物件コメント

    スマサポコンシェル1320円(月額) こだわりポイント満載のアドバンス三宮シュロス。セキュリティ面は、オートロック・TVインターホンなどを設置しているので安全面でも優れております。共用部には宅配ボックスを設置しているため、家で何時間も待機する必要がありません。利便性の良い春日野道周辺で住まい検索をするなら、アパマン住宅にご連絡下さい。078-334-2960からいつでもどうぞ。
    この物件について
    電話で問い合わせる
    この物件の詳細情報
    物件番号 100961835110
    物件番号 100961835110
    所在地 神戸市中央区八雲通1丁目 MAPを見る
    交通
    • 阪急神戸線春日野道より徒歩4分
    • 阪神本線春日野道より徒歩5分
    家賃62,900円
    家賃相場を見る
    共益費5,900円
    敷金-
    礼金12.58万円
    取引態様一般
    入居時期即入居
    間取り1K
    専有面積24.45m2
    駐車場
    部屋の向き東向き
    種別マンション
    完成年月2015年3月
    建物構造鉄筋コンクリート 11階建/11階
    その他保証金:-、解約引:-、契約一時金:-、償却費:-、その他費用:
    設備・条件
    浴室乾燥機、トイレ/風呂別、室内洗濯機置場、システムキッチン、エアコン、バルコニー、モニタ付インターホン、オートロック、宅配ボックス、エレベータ、自転車置場、BS、CS、CATV

    この物件のお問い合わせ先

    免許番号:兵庫県知事(9)第9090号
    会社名:ホームメイトFC三宮店
    所在地:兵庫県神戸市中央区三宮町1丁目8番1号 さんプラザ 112号室
    店舗のMAP
    078-334-2960
    FAX:078-334-2962
    ※お問い合わせの際は、物件番号や「神戸賃貸マンション情報NETを見て」とお伝えいただくと対応がスムーズになります。

    この物件情報を送る



    ページTOPヘ