• 賃貸物件を探す
  • 賃貸物件詳細

神戸市中央区二宮町1丁目

交通 三ノ宮駅 徒歩8分

  • 家賃 6.4万円
  • 共益費 6,000円
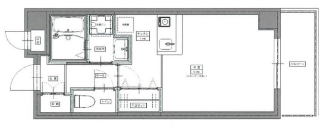
  • 間取り 1R
  • 専有面積 22.12m2
  • その他写真1
  • その他写真2
  • その他写真3
  • その他写真4
  • その他写真5
  • その他写真6
  • その他写真7
  • その他写真8
  • その他写真9
  • その他写真10

    物件コメント

    保証会社加入要 退去時清掃代33000円 短期解約違約金あり
    この物件について
    電話で問い合わせる
    この物件の詳細情報
    物件番号 100961834676
    物件番号 100961834676
    所在地 神戸市中央区二宮町1丁目6-1 MAPを見る
    交通
    • JR東海道本線(近畿)三ノ宮より徒歩8分
    • 神戸市営地下鉄線新神戸より徒歩11分
    家賃64,000円
    家賃相場を見る
    共益費6,000円
    敷金-
    礼金-
    取引態様一般
    入居時期2025年11月
    間取り1R
    専有面積22.12m2
    駐車場
    部屋の向き南向き
    種別マンション
    完成年月1991年10月
    建物構造鉄筋コンクリート 5階建/3階
    その他保証金:-、解約引:-、契約一時金:-、償却費:-、その他費用:
    設備・条件 事務所利用可
    給湯、シャワー、トイレ/風呂別、室内洗濯機置場、ウォッシュレット、エアコン、フローリング、バルコニー、オートロック、宅配ボックス、エレベータ、自転車置場、CATV、IHクッキングヒーター

    この物件のお問い合わせ先

    免許番号:兵庫県知事(9)第9090号
    会社名:ホームメイトFC三宮店
    所在地:兵庫県神戸市中央区三宮町1丁目8番1号 さんプラザ 112号室
    店舗のMAP
    078-334-2960
    FAX:078-334-2962
    ※お問い合わせの際は、物件番号や「神戸賃貸マンション情報NETを見て」とお伝えいただくと対応がスムーズになります。

    この物件情報を送る



    ページTOPヘ